15
$339,000 Sale
Listed 45 days ago
214 2990 Boulder Street
· 1
· 1
· 1
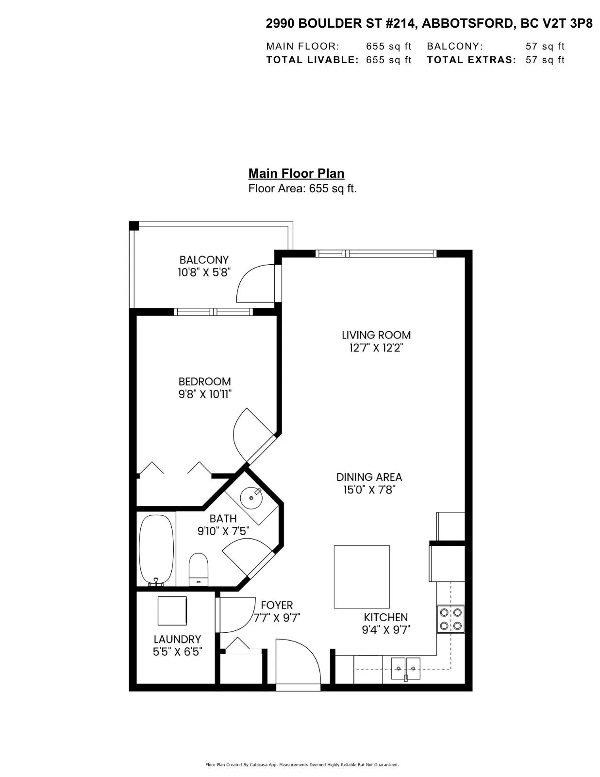
· 655
Key Facts
Key facts for 214 2990 Boulder Street
Property Type
Condo
Parking
1 parking
MLS #
R3040826
Size
655 sqft
Basement
None
Listed on
-
Lot size
-
Tax
$1,539.66 /yr
Days on Market
-
Year Built
2006
Maintenance Fee
$255.55 /mo
Description
Westwood! Spacious East facing 1-bedroom and 1-bathroom layout, this home is thoughtfully designed to suit any lifestyle. Step inside to discover West Coast-inspired finishings, including sleek slate backsplash, stainless steel appliances, and rich maple shaker cabinets that create a warm, modern at...mosphere. The open living space flows seamlessly, offering both functionality and comfort, plus a laundry room! Enjoy peace of mind with a secure underground parking stall and the unbeatable convenience of being in the heart of it all — just steps from the library, City Hall, the rec centre, local shops, and cozy cafes. This is more than a home — it’s a lifestyle. Don’t miss your chance to own a piece of this vibrant community! First-time buyer, downsizers, investors.. this is the home for you!
Similar Properties (No results)
Room Types
Kitchen
-
Dimensions 9'4 x 9'7
89.44 sqft
Dining Room
-
Dimensions 7'8 x 15'
115 sqft
Living Room
-
Dimensions 12'2 x 12'7
153.1 sqft
Courtesy of: Macdonald Realty (Surrey/152)